Mein aktuelles Angebot in Eitorf-Halft!
Objekt-ID: 100842 - VERKAUFT
Objekt-ID: 100843 - VERFÜGBAR
Hier entsteht vielleicht Ihr neues Zuhause?
Klimafreundlicher Neubau mit Förderung:
4 Zimmer, Garten, Terrasse und Garage
4
Zimmer
2025/2026
Baujahr
ca. 124 m2/ ca. 296 m2
Wohnfläche/Grundstück
529.000,- Euro
Kaufpreis zzgl. Courtage
Ausstattung
Die gehobene Ausstattung lässt keine Wünsche offen:
Alle Materialien werden in gehobener Qualität ausgewählt, so z. B. Feba-Fenster und Türen (o. gleichwertig). Die Fußbodenheizung darf natürlich nicht fehlen, ebenso wie elektrische Rollläden. In den Bädern werden hochwertige Sanitärelemente und Fliesen verwendet.
Hier nochmal alle Vorzüge dieser wunderschönen Häuser auf einen Blick:
- komplett schlüsselfertige Errichtung
- 4 Zimmer
- große Kunststofffenster, außen anthrazit, innen weiß mit 3-fach Verglasung
- elektrische Kunststoff-Rollläden
- Fußbodenheizung in allen Räumen, außer Garage und Abstellraum, HAR im EG
- hochwertige Fliesen oder Echtholzparkett als Bodenbeläge
- ruhige Terrasse in süd-westlicher Ausrichtung
- 1 Badezimmer im OG, ein Gäste-WC mit Dusche im EG, beide mit Fenster
- 1 Garage mit anschließendem Abstellraum
- inkl. aller Hausanschlüsse (Kanal, Wasser, Strom, Telekommunikation)
- inkl. Außenanlagen (L-Steine, Einzäunung)
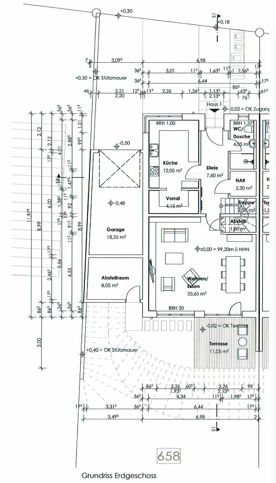
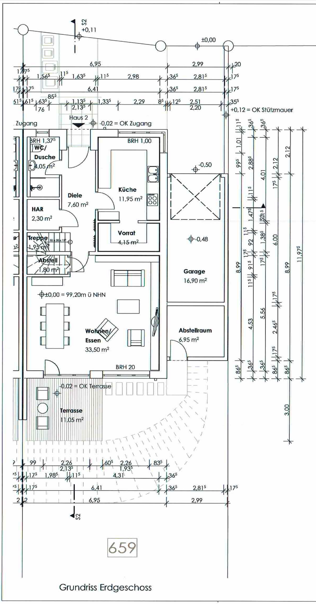
Grundriss Erdgeschoss (Haus 1)

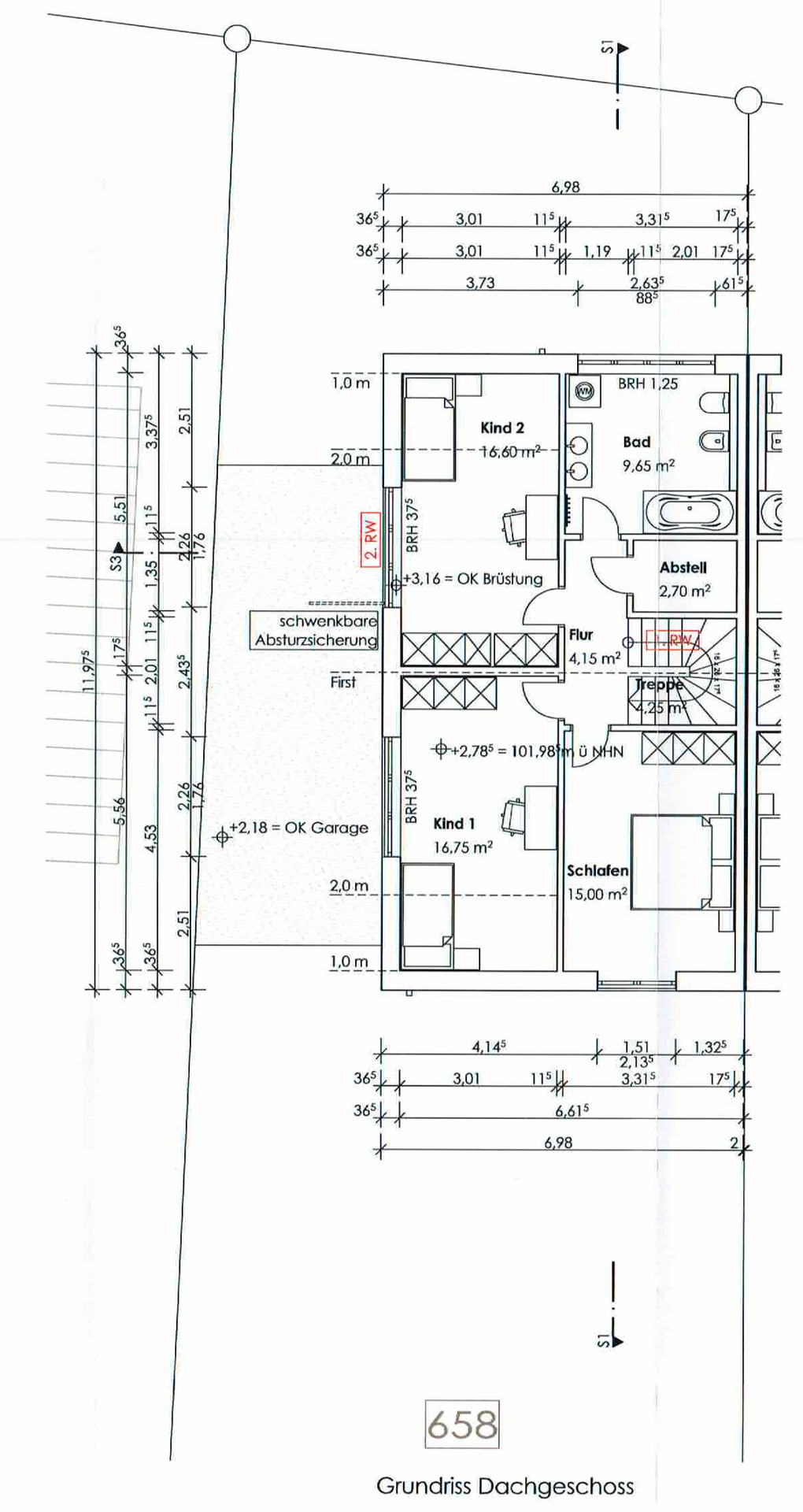
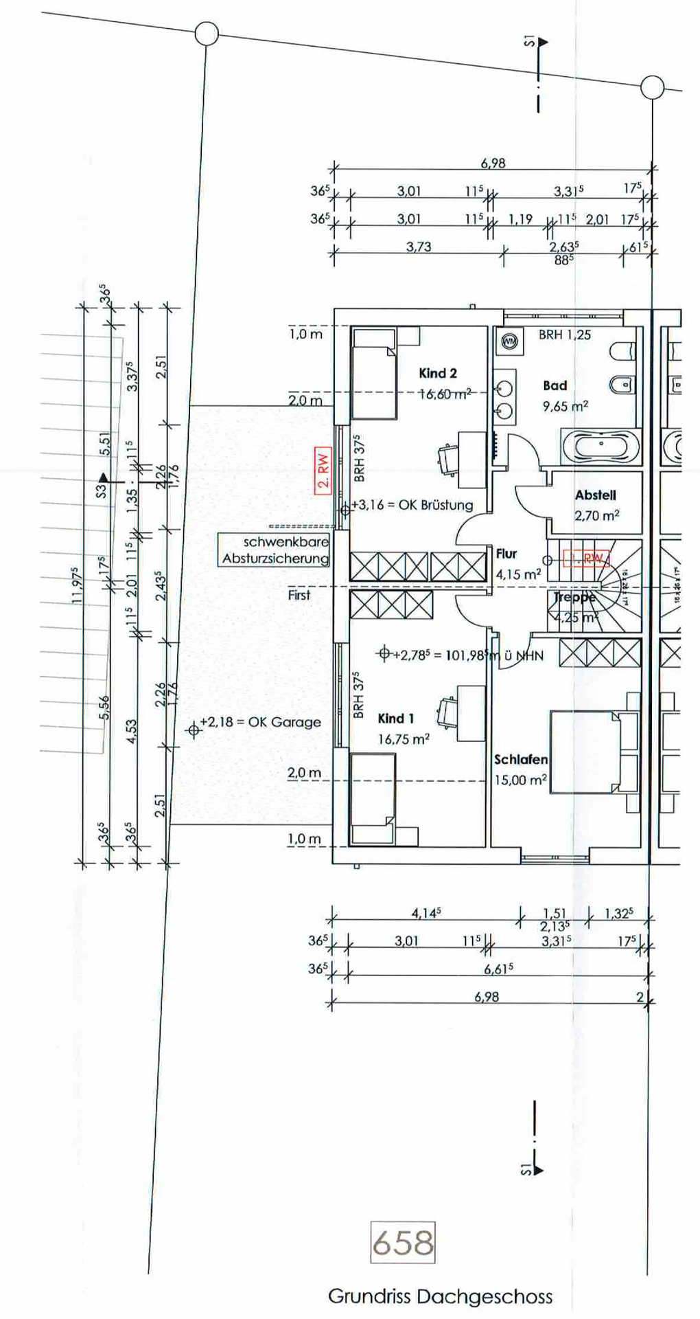
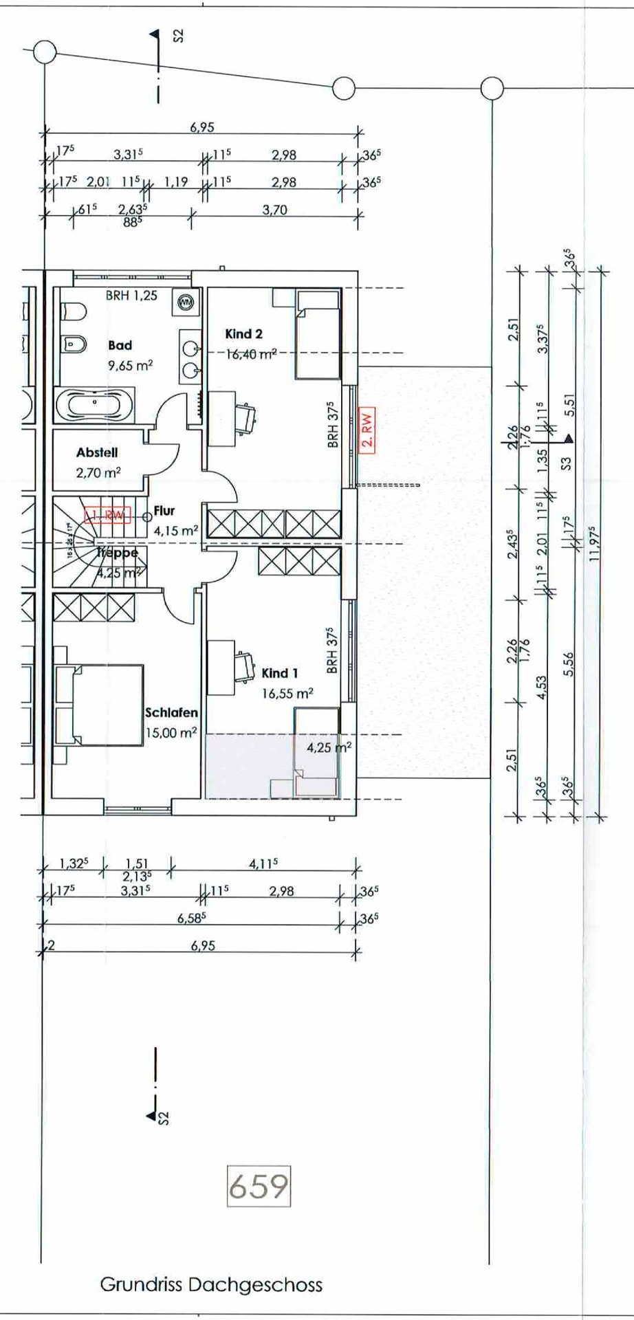
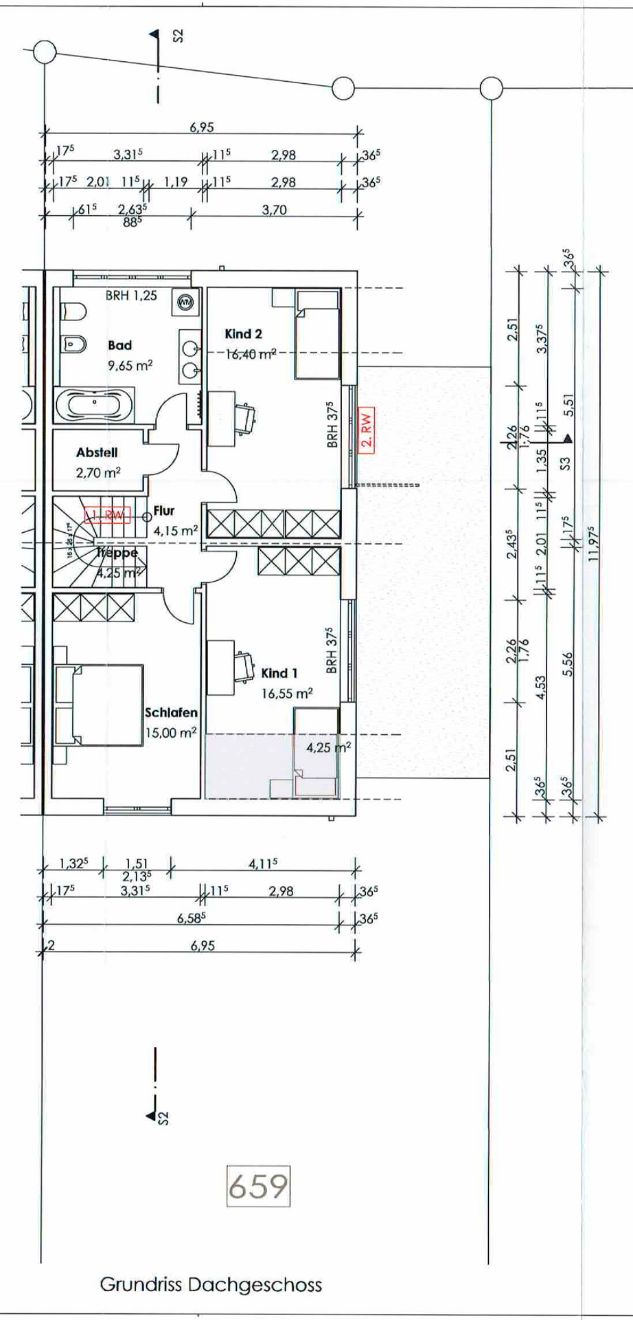
Grundriss Obergeschoss
(Haus 1)

Ihre Ansprechpartnerin

Alexandra Kluth, Inhaberin
Rufen Sie mich direkt an, um einen
Besichtigungstermin zu vereinbaren.
Sie möchten ein Finanzierungsangebot
bzw. ein Vergleichsangebot erhalten?
Dieses Objekt passt nicht, aber Sie
möchten weitere Angebote erhalten?
Lage:
Die beiden Doppelhaushälften werden in ruhiger und idyllischer Lage in Eitorf, Ortsteil Halft errichtet. Die Geschäfte des täglichen Bedarfs befinden sich nur wenige Autominuten entfernt in Eitorf. Ein Kindergarten befindet sich direkt in Eitorf-Halft, weitere stehen in anderen Ortsteilen zur Verfügung. Die nächstgelegene Grundschule in Alzenbach ist ca. 1,3 km entfernt, zum Gymnasium sind es rund 2,5 km.
sonstiges:
Unsere Angaben und Auskünfte beruhen auf Aussagen unseres Auftraggebers. Irrtum, Änderungen und Auslassungen bleiben vorbehalten.
Sie haben Interesse?
Melden Sie sich gerne bei mir, wenn Sie Rückfragen haben oder einen Besichtigungstermin vereinbaren möchten..









